| 価格 | 3,098万円 |
|---|---|
| 月々支払い | 79,773円 頭金0円 / ボーナス払い0円 |
| 種目 | 新築一戸建住宅 |
| 所在地 | 松山市生石町③ 松山市生石町③/4LDK/3298万円/たちばな小・雄新中 |
| 建物面積 | 103.02㎡(31.16坪) |
| 土地面積 | 120.96㎡(36.59坪) |
物件価格3,098万円
月々の支払い79,773円
徒歩26分の場所に松山市立たちばな小学校があります。生活を豊かにする様々な設備も充実した、新築の戸建て物件です。浴槽内の湯が冷めたときでも追焚機能付き浴室なので快適です。ワイズ不動産がお勧めする松山市
この物件の詳細について、お気軽にお問い合わせください

| 種目 | 新築一戸建住宅 | ||
|---|---|---|---|
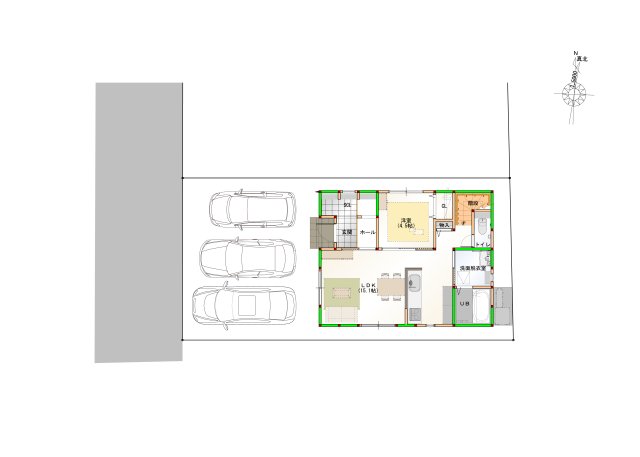
| 間取り | 4LDK | 間取り内訳 | |
| 土地面積 | 120.96㎡(36.59坪) | 私道面積 | |
| 建物面積 | 103.02㎡(31.16坪) | 建物構造規模 | 木造 2階建 |
| 築年月(竣工月) | 2026年05月 | 駐車場 | |
| 建ぺい率/容積率 | 50%/80% | 都市計画 | 市街化区域 |
| 接道状況 | 西7.7m 私道 接面4.1m 一方道路 | ||
| 地目 | 宅地 | ||
| 土地権利 | 所有権 | 地勢 | 平坦 |
| 用途地域 | 準工業地域 | ||
| 現況 | 未完成 | 取引態様 | 一般媒介 |
| 建築確認番号 | 第第2025建確-2058号号 | ||
| 引渡し | 相談 |
|---|
| 設備 | 下水道、IHクッキングヒーター、システムキッチン、追焚機能、床下収納、ウォークインクローゼット、モニタ付インターホン、温水洗浄便座、浴室乾燥機、照明器具、バス専用,トイレ専用,バス・トイレ別,コンロ口数(三口),洗濯機置き場室内,バルコニー,フローリング,駐輪場,全居室収納,クローゼット,シューズボックス,太陽光発電システム | ||
|---|---|---|---|
| 特徴 | 水道(公営),デザイナーズ,耐震構造,セットバック無 | ||
| 諸条件・相談 | |||
| 情報登録日 | 2026年4月19日 | 情報更新予定日 | 2026年5月3日 |
| 物件番号 | 485 | ||
| 所在地 | 松山市生石町③ 松山市生石町③/4LDK/3298万円/たちばな小・雄新中 | ||
|---|---|---|---|
| 最寄駅 | 徒歩分数 | 13分 | |
| 最寄バス停 | 徒歩分数 | ||
| 小学校校区 | 松山市立たちばな小学校 | 中学校校区 |
松山市立雄新中学校
|
※学校区は住所から自動判定したものであり、保証できる情報ではございません。正確な学校区はお問い合わせ下さい。
※地図上の「対象地」は実際の場所ではない場合がございます。詳しくはお問い合わせください。
