| 価格 | 2,498万円 |
|---|---|
| 月々支払い | 68,695円 頭金0円 / ボーナス払い0円 |
| 種目 | 新築一戸建住宅 |
| 所在地 | 松山市北梅本町① 松山市北梅本①/4LDK/2298万円/小野小・小野中 |
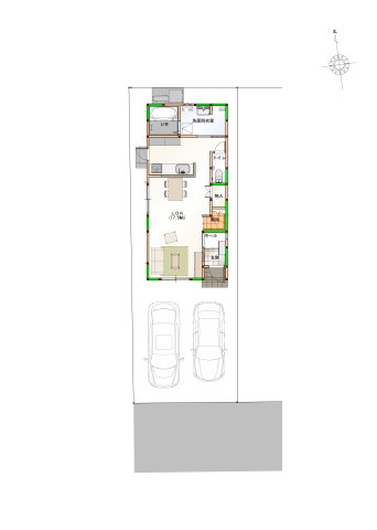
| 建物面積 | 90.1㎡(27.25坪) |
| 土地面積 | 110.38㎡(33.38坪) |
物件価格2,498万円
月々の支払い68,695円
松山市エリアでの住まいなら、住み心地も快適な「松山市北梅本①/4LDK/2798万円/小野小・小野中」はいかがでしょうか。広々としたゆとりある室内が魅力的な、4LDKの物件です。bunjyo@alle
この物件の詳細について、お気軽にお問い合わせください

| 種目 | 新築一戸建住宅 | ||
|---|---|---|---|
| 間取り | 4LDK | 間取り内訳 | |
| 土地面積 | 110.38㎡(33.38坪) | 私道面積 | |
| 建物面積 | 90.1㎡(27.25坪) | 建物構造規模 | 木造 2階建 |
| 築年月(竣工月) | 2025年07月 | 駐車場 | 空有 |
| 建ぺい率/容積率 | 60%/200% | 都市計画 | 市街化区域 |
| 接道状況 | 南5.9m 公道 接面4m 一方道路 | ||
| 地目 | 宅地 | ||
| 土地権利 | 所有権 | 地勢 | 平坦 |
| 用途地域 | 第一種住居地域 | ||
| 現況 | 未完成 | 取引態様 | 一般媒介 |
| 建築確認番号 | 第第2024建確-2559号号 | ||
| 引渡し | 相談 |
|---|
| 設備 | 浄化槽、IHクッキングヒーター、システムキッチン、追焚機能、ウォークインクローゼット、モニタ付インターホン、温水洗浄便座、浴室乾燥機、照明器具、バス専用,トイレ専用,バス・トイレ別,コンロ口数(三口),洗濯機置き場室内,バルコニー,フローリング,駐輪場,全居室収納,クローゼット,シューズボックス | ||
|---|---|---|---|
| 特徴 | 水道(公営),デザイナーズ,耐震構造,セットバック無 | ||
| 諸条件・相談 | |||
| 情報登録日 | 2025年7月5日 | 情報更新予定日 | 2026年3月24日 |
| 物件番号 | 442 | ||
| 所在地 | 松山市北梅本町① 松山市北梅本①/4LDK/2298万円/小野小・小野中 | ||
|---|---|---|---|
| 最寄駅 | 徒歩分数 | 5分 | |
| 最寄バス停 | 徒歩分数 | ||
| 小学校校区 | 松山市立小野小学校 | 中学校校区 |
松山市立小野中学校
|
※学校区は住所から自動判定したものであり、保証できる情報ではございません。正確な学校区はお問い合わせ下さい。
※地図上の「対象地」は実際の場所ではない場合がございます。詳しくはお問い合わせください。
